
根据《中华人民共和国政府采购法》等有关规定,湖州江南工程咨询有限公司就德清县人民医院乾元院区污水处理系统设备采购安装项目进行公开招标,欢迎国内合格的供应商前来投标。
一. 招标项目编号:DQZFCG-2018-G102
二.采购组织类型:分散委托采购
三. 招标项目概况:
| 标项 | 标项名称 | 单位 | 数量 | 预算金额 | 简要规格描述或标项基本概况介绍 | 备注 |
| 一 | 污水处理系统设备采购安装 | 项 | 1 | 80万 | 详见采购文件 |
污水处理系统技术规格要求
1、污水水量
根据医院现有用水量统计资料,在考虑有一定的余量的基础上,医院污水处理系统设计规模确定为:70吨/天,按每天运行24小时,即设计每小时大处理量3吨每小时。
2、污水水质
医院污水由于其排放的不均匀性,污水水质随时间、季节的变动较大,污水水质的合理确定关系到污水处理设施的设计和建设是否合理、可靠,关系到是否能够达到污水的处理要求。
3、污水处理系统要求
1、贯彻执行国家关于环境保护的政策,符合国家的有关法律、法规、规范及标准,结合医院的具体情况,采用先进、实用、成熟、可靠的处理工艺,满足水质、水量波动的进水要求,确保废水经处理后达到直接排入河道的要求;
|
注:上表数据单位除粪大肠菌群数为MPN/L,PH无量纲,其余均为mg/L。消毒接触池接触时间≥1h,接触池出口总余氯3-10mg/L。
废水处理预测去除率见下表:
|
水质参数 |
进水(mg/l) |
出水(mg/l) |
去除率% |
|
CODcr |
350 |
60 |
82.85% |
|
BOD5 |
150 |
20 |
86.67% |
|
SS |
200 |
20 |
90% |
|
NH3-N |
30 |
15 |
50% |
|
大肠菌群数 |
6.0×105个/L |
500MPN/L |
99.92% |
五、污水处理工艺及流程图
1、贯彻执行国家关于环境保护的政策,符合国家的有关法律、法规、规范及标准,结合医院的具体情况,采用先进、实用、成熟、可靠的处理工艺,满足水质、水量波动的进水要求,确保废水处理后达标排放;
2、根据设计进水水质和排放水质要求,所选污水处理工艺力求技术先进成熟、处理效果好、运行稳妥可靠、节能、经济合理,确保污水处理效果,减少工程投资及日常运行费用;
3、大程度上的降低处理成本和保证系统稳定运行;
4、妥善处理和处置污水处理过程中产生的栅渣、污泥,避免造成二次污染;
5、为确保工程的可靠性及有效性,提高自动化水平,降低运行费用,减少日常维护检修工作量,改善工人操作条件;
6、采用现代化技术手段,尽量采用自动化控制和管理;做到技术可靠、经济合理;
7、工艺流程图:
六、构筑物设计
1 、化粪池2(传染病房化粪池改造)
主要作用:沉降污水中悬浮物,确保污水进行厌氧消化,末端设细格栅阻隔粗杂、漂浮物,保证水泵及后续处理构筑物和设备的顺利进行。其中传染病区应设专用化粪池,收集经消毒处理后的粪便排泄物等传染性废物,化粪池利用医院原有化粪池。
设计参数为水力停留时间:T≥36h。池型:三室化粪池,清掏周期为180-360d。配套设备:
①格栅框,格栅间隙15-20mm,数量1套,设在化粪池出口;
② DN110PVC化粪池排水管道;
2 、格栅井
主要作用:拦截较大的飘、悬浮物,保护水泵及其它主体设备。保证后续设备的稳定运行。设计说明:考虑到医院污水会有部分手术残留物和其它杂质排入化粪池,并且经常会有塑料薄膜等难降解或者未降解的杂物随污水流入污水处理系统,导致水泵堵塞等事故发生,故在污水进入调节池之前设立格栅井进行拦截。
设计过栅流速: 0.7m/s设计大时过流量:20m3/h
格栅井尺寸: 0.75×0.75×1.0m数量结构:1座,钢混。
配套设备:
①人工格栅,格栅间隙15-20mm,数量2套,格栅池设在现有调节池前。
3、 收集池
主要作用:单独收集传染病房污水并消毒,污水经过消毒后,再泵入调节池。
设计说明:根据《医疗机构水污染物排放标准》GB18466-2005中4.1.5和5.2的有关要求。传染病房的综合医疗机构,应将传染病房污水与非传染病房污水分开。传染病房的污水、粪便经过消毒后方可与其他污水合并处理。传染病医疗机构和综合医疗机构的传染病房应设专用化粪池,收集经消毒处理后的粪便排泄物等传染性废物。
停留时间: 24h
尺 寸: 1.5×1.5×1.5m
有效水深 1.2m
容 积:2.70m3
数 量:1座,钢砼防腐配套设备:
①电解法二氧化氯发生器YXD-50 1台,产氯量50g/h;
②在线余氯仪1套;
③穿孔曝气系统3m2;
④收集池不锈钢排污泵QW50-10-10-0.75,2台1用1备;
⑤ 防腐浮球液位控制器1套;
4、调节池(利用现有调节池+新增部分)
主要作用:调节水量,均化水质,保证后续处理的稳定运行并有一定的水解酸化作用,能去除部分杂质。
设计说明:因为医院污水的水质水量日变化较大,当这个变化大于微生物所能承受的生存环境变化的极限时,能导致微生物大量死亡甚至生物处理系统的崩溃。因此将水质水量均化后稳定在一定的数值内,保持微生物生存环境的稳定,才能确保生物处理系统的稳定运行。
停留时间:16h
原调节池尺寸:4.5×3.0×2.5m
新增部分: 2.0×3.0×3.0(碳钢)
容 积: 48m3
数 量: 1座,钢混+碳钢配套设备:
①调节池排污泵:型号GW50-10-10-0.75,数量4台,二用二备;
②防腐浮球液位控制器2套;
③引水罐¢500,1套;
④DN50电磁流量计;
5、 缺氧池
主要作用:通过池中的缺氧微生物对回流过来的含有大量硝酸盐及亚硝酸盐的混合液泥进行反硝化脱氮,降低部分有机污染物浓度。通过水解作用提高废水可生化性,经缺氧处理后的污水自流进入好氧池。
设计说明:通过反硝化菌反硝化脱氮,确保氨氮达标排放。停留时间: 5.60h
有效容积:16.8m³
有效水深: 2.80m
结构尺寸: 3.00×2.00×3.00m
数 量: 1座,碳钢环氧煤沥清防腐配套设备:
穿孔曝气系统6m2;
¢100悬浮生物填料8.5 m3;
6 、生物接触氧化+MBR好氧池
主要作用:微生物通过同化及异化作用将水中的大部分的污染物降解,达到污水净化的目的。
设计说明:接触氧化法是活性污泥法的改进。克服了活性污泥法丝状膨胀等的弊端,MBR池能极大提高了系统的生物容量和系统运行的稳定性。
有效容积: 24.3m3
容积负荷: 0.4KgCODcr/m3.d
总停留时间: 8.0h
结构尺寸: 3.0×3.0×3.0m
有效水深: 2.70m
数 量: 1座,碳钢环氧煤沥清防腐配套设备:
①¢100悬浮生物填料6.0m3;
②¢215微孔曝气器20套;
③曝气系统5m2;
④沉水式风机2台TSW-8055 ,4.48m3/min,3000mmAq,1用1备;
⑤超强抗污染型膜 KY-GXMBR-10-Co-PVDF 25片;
⑥MBR不锈钢膜架1套,2350×900×1800mm
⑦MBR抽水泵 SZ075B ,2台1用1备;
⑧防腐浮球液位控制器1套;
⑨GW50-10-10-0.75 污泥回流泵2台,一用一备,排泥系统1套;
7、污泥池
主要作用:收集污泥,通过自然发酵消减污泥总量,同时添加二氧化氯在池中完成污泥消毒过程。
设计说明:污泥在收集过程中往往带有大量的水分,多余水分可以通过溢流管回流到调节池再进行处理。
有效容积: 8.4m3
停留时间: 定期消毒压滤
结构尺寸: 3.0×1.0×3.0m
数 量: 1座,碳钢玻璃钢防腐
配套设备:
①隔膜压滤机:XMYG800-30UB,30m2 1台;
② 隔膜泵1台,ARO-1〞;
③ DN50管道混合器1套;
④空压机1台,气量0.36m3/min,0.8MPa;
⑤穿孔曝气系统4.0m3;
⑥ PAM加药系统1套,含加药泵、配药槽、溶药装置;
⑦余氯仪1套;
8、接触消毒池、脱氯池
主要作用:对出水进行消毒并降低余氯
设计说明:因为医院污水含有大量的致病微生物,通过生物处理过程并不能保证完全杀灭水中的致病微生物,因此需要设立消毒池对排水进行消毒处理。
池 型:横向分隔推流池。尺 寸:1.0m×3.0m×3.0m有效水深:2.50m
数 量: 1座,碳钢玻璃钢防腐接 触时间:T=2.50h
污 水投氯 量:K=35g/t配套设备:
①穿孔曝气系统6.0m2;
②电解法二氧化氯发生器YDX-200,1台,产氯量200g/h;
③在线余氯仪2套;
④硫代硫酸钠加药系统1套;
⑤消泡剂加药系统1套;
⑥ PH控制系统1套PC-365;
⑦ DN50电磁流量计1套;
9、管理操作防雨棚
主要作用:管理操作、存放设备预算尺寸:11.0m×4.5m×4.0m
10、食堂隔油池
主要作用:食堂废水产生的油污隔离数量:1座,钢 砼
尺寸:1.5mL×1.0W×1.55H
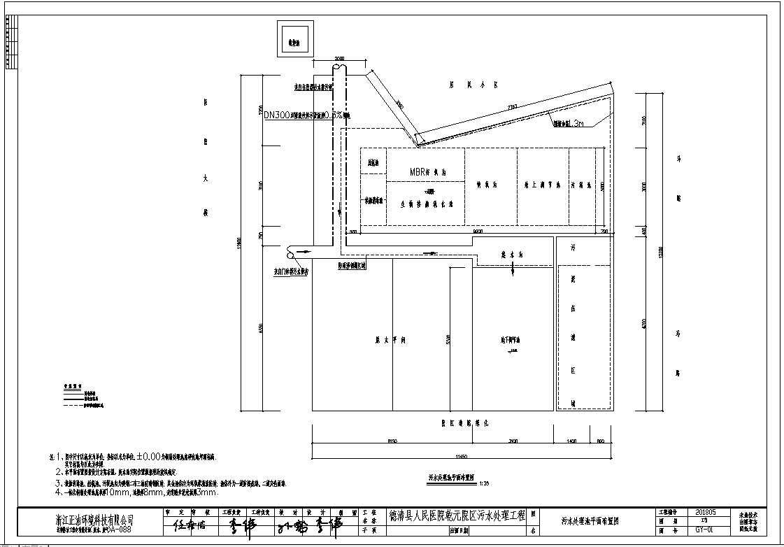
七、院区平面布局
依据“合理布局、流程有序、功能分区、布置紧凑,既有利于生产又方便管理”的院区平面布置原则,同时考虑到原有化粪池、地形等条件,结合院区进出水方向,院外道路和建筑物等因素,通过精心设计、分析后确定院区平面布置图。管理操作防雨棚用于污水处理钢池及处理设备防雨。该方案的特点是处理单元布置紧凑,占地面积小,污水处理流程顺畅,操作管理方便,对周边建筑及环境影响小。
八、 高程设计
污水处理院区地面高程按设定为相对标高+0.00m,污水处理站高标高+4.00,底标高为原有调节池标高。
污水站的进水由调节池顶的排污泵提升进入处理设施处理,实现一次提升完成全流程的目的。
MBR池混合液经泵一部分回流入生化池,剩余污泥排入污泥池消毒压滤后做危废处理。九、结构形式及技术要求
1、建筑物:一般情况下,采用砖混结构。基础采用柱下独立基础和墙下条形基础。有特殊要求的建筑可采用框架或排架结构。
2、构筑物:本工程属小型规模的污水处理站,其主要构筑物均为盛水构筑物,对结构防水性能有较高的要求。故盛水构筑物均采用钢筋混凝土结构。材料要求:混凝土C35或C40,垫层C25。水灰比不大于0.55
抗冻标号:D50抗渗标号:S6
十、污水处理系统工程量清单
1、土建及附属工程工程量清单
|
序号 |
名称 |
规格 |
材质 |
数量 |
单位 |
|
1 |
防雨彩钢棚 |
11×4.5×5.0m+ 3.0×10.0×5.0m |
热镀锌单板 0.6mm厚 |
80 |
m2 |
|
2 |
压滤机基础 |
2.55×1.10m |
砖混内玻璃钢防腐 |
1 |
座 |
|
3 |
收集池 |
1.5×1.5×1.5m |
钢砼内防腐 |
1 |
座 |
|
4 |
一体化处理设备 基础挖方、运方 |
梯形体积 |
硬化地坪碎 石料、杂土 |
60 |
m3 |
|
5 |
一体化处理设备基础 地坪硬化0.3m |
面 积 (4.0+7.5)×11m÷2 |
钢 砼 |
19 |
m3 |
|
6 |
传染病房化粪池第三 格与新建阴井对接 |
¢800 阴井现场配套 |
钢砼、砖混 |
1 |
批 |
|
7 |
开挖沟槽及砌筑管沟 上设混凝土盖板 |
管沟宽200mm,深250mm 现场配套 |
砖混、钢砼 |
32 |
m |
|
8 |
¢800阴井带井盖 |
¢800×1000mm 现场配套 |
砖 混 |
8 |
只 |
|
9 |
DN300波纹排污管 |
双壁波纹管S1 |
PE |
110 |
m |
|
10 |
开挖阴井沟槽及埋管回填 |
沟深1000mm沟槽表面混 凝土硬化地坪100mm,下层为泥土 |
泥土、钢砼 |
115 |
m |
|
11 |
DN100PVC 排水管道铺设 |
现场配套 管路通过活接连接 |
PVC |
185 |
m |
|
12 |
污水处理区块上空旧 蒸汽管道拆除 |
DN150管径现场配套 |
碳 钢 |
25 |
m |
|
13 |
砌围墙 |
10m长,1.3m高 与现场配套 |
砖混 |
1 |
批 |
|
14 |
食堂隔油池 |
1.5mL×1.0W×1.55H |
钢 砼 |
1 |
座 |
|
15 |
不可预见费用 |
现场配套 |
|
1 |
批 |
2、主要工艺设备及材料清单
|
序号 |
设备名称 |
规格型号 |
单位 |
数量 |
材质 |
推荐品牌 |
|
1 |
人工不锈钢格栅 |
格栅间隙15-20mm 500W×700H |
套 |
2 |
304 |
非标 |
|
2 |
格栅框 |
格栅间隙15-20mm 600W×400H |
套 |
1 |
304 |
非标 |
|
3 |
调节池排污泵 |
GW50-10-10-0.75 1用1备 Q=10m3/h,H扬=10m,P=0.75Kw |
台 |
4 |
碳钢 |
阳光、上海凯泉、连成 |
|
4 |
收集池排污泵 |
QW50-10-10-0.75 1用1备Q=10m3/h,H扬 =10m,P=0.75Kw |
台 |
2 |
不锈钢 |
阳光、上海凯泉、连成 |
|
5 |
防腐浮球液位控 制器 |
配 套 |
套 |
6 |
塑料 |
晰营、长 营、高超 |
|
6 |
穿孔曝气系统 |
DN32 |
m2 |
24 |
UPVC |
非标 |
|
7 |
悬浮生物填料 |
¢100 |
m3 |
14.5 |
PP |
奇美、凯 衍、清溪 |
|
8 |
微孔曝气器 |
¢215 |
套 |
20 |
ABS |
奇美、凯 衍、清溪 |
|
9 |
电解法二氧化氯 发生器 |
YDX-200 产氯量 200g/h |
套 |
1 |
UVPC |
秀霸、玉 洁、永兴、 |
|
10 |
电解法二氧化氯 发生器 |
YDX-50产氯量500g/h |
套 |
1 |
UVPC |
秀霸、玉 洁、永兴、 |
|
11 |
消泡剂加药系统 |
含GW045计量泵、配药 槽、溶药装置等 |
套 |
1 |
PVC PP |
巧泰、南 方、阳光 |
|
12 |
硫代硫酸钠加药 系统 |
含GM0120加药泵、配 药槽、溶药装置等 |
套 |
1 |
PP PVC |
巧泰、南 方、阳光 |
|
13 |
PAM加药系统 |
含GM0170加药泵、配 药槽、溶药装置等 |
套 |
1 |
PVC PP |
巧泰、南 方、阳光 |
|
14 |
PH自动控制加药 系统 |
PC-365 |
套 |
1 |
复合 |
诺普、合 泰、美控 |
|
15 |
SEKO在线余氯仪 |
K080CLPM0800 |
套 |
4 |
复合 |
赛高、博克 斯、AI-ON |
|
16 |
沉水式风机 |
TSW-8055 1 用1备4.48m3/min 0.3MPa |
台 |
2 |
铸铁 |
川源、章晃、春鼎 |
|
17 |
引水罐 |
¢500 150L |
套 |
1 |
PP |
水凌、贝 特、宏泽 |
|
18 |
电磁流量计 |
DN50 |
套 |
2 |
四氟内衬 |
工考、拓 胜、美控 |
|
19 |
MBR膜 |
超强抗污染型 KY-GXMBR-10-Co-PVDF |
片 |
25 |
聚偏 氟乙烯 |
膜天、碧水源、凯衍 |
|
20 |
MBR不锈钢膜架 |
2350×900×1800mm |
套 |
1 |
不锈 钢 |
膜天、碧水 源、凯衍 |
|
21 |
MBR抽水泵 |
SZ075B 1用1备 |
台 |
2 |
不锈 钢 |
粤华、连 成、阳光 |
|
22 |
污泥回流泵 |
GW50-10-10-0.75 1用 1备Q=10m3/h,H扬 =10m,P=0.75Kw |
台 |
2 |
碳钢 |
阳光、上海凯泉、连成 |
|
23 |
隔膜压滤机 |
XMYG800-30UB,30m2 |
台 |
1 |
PP隔 膜 |
兴源、绿 鼎、恒达 |
|
24 |
隔膜泵 |
ARO-1〞 |
台 |
1 |
铝合金 |
英格索兰、 威尔顿、固瑞克 |
|
25 |
管道混合器 |
DN50 |
套 |
1 |
UPVC |
非标 |
|
26 |
空压机 |
0.36m3/min,0.8MPa |
台 |
1 |
碳钢 |
杭空、熊 猫、开ft |
|
27 |
钢制一体化处理池 |
9.00×3.00×3.00m 8mm底板10mm 含池体、支撑、走道板、楼梯、楼梯平台、防腐 |
套 |
1 |
碳钢 环氧防腐部分玻璃钢防腐 |
非标制作 |
|
28 |
管道、阀门、弯头、 配件等 |
配 套 |
批 |
1 |
UPVC |
水友、估 利、金德 |
|
29 |
油 漆 |
配 套 |
批 |
1 |
醇酸 树脂 |
多乐士、立 邦、大桥 |
|
30 |
电线电缆 |
配 套 |
批 |
1 |
橡胶 铜芯 |
远东、熊 猫、永通 |
|
31 |
电气控制柜 |
配 套 |
套 |
1 |
不锈 钢 |
非标 |
|
32 |
管道保温海绵 |
配 套 |
批 |
1 |
橡塑 |
非标 |
|
33 |
微生物菌种 |
配 套 |
吨 |
3 |
污泥 |
专用 |
1、电气:因为污水处理厂的总装机负荷不高,所以不必单独设置变电站,可以考虑从院区的变电室直接接线。
2、接地:低压配电系统的接地保护形式为TN系统。
3、控制系统:采用控制柜集中控制的方式。提升泵通过液位控制器控制,实行“高开低停”运行;氯加药量通过余氯传感电极控制;余氯去除通过余氯传感电极自动控制脱氯加药;MBR抽水泵通过时间控制器和液位控制器同时控制。其余泵开启通过手动控制。
本工程用水由城市自来水管网供给,水量、水质、水压应满足要求。本工程日用水量为
10m3/d,Qmax=3m3/h,主要为溶药及职工生活用水、压滤机冲洗用水。十三、设备调试工作内容:
1、完成电气、设备调试;
2、完成对操作人员现场培训;
3、完善工程出现或遗留下来的问题;
4、协助水质第三方检测工作;
5、完成相关的转、交接手续及资料;
6、建立、完善污水站操作规程,并培训污水站管理人员和操作人员。
7、检测合格后,做好工程设备保修工作及技术咨询工作。十四、主要技术经济指标(排放标准)
注:上表数据单位除粪大肠菌群数为MPN/L,PH无量纲,其余均为mg/L。消毒接触池接触时间≥1h,接触池出口总余氯3-10mg/L。
十五、工程保修承诺及具体措施
1、设备保修期限为两年,自安装完成竣工验收合格之日起开始计算;
2、保修期内,接到处理故障通知后,2小时内回复处理意见,必要时派人迅速到达现场;
3、长期提供优质优价的备品和备件,建立定期回访制,提供终身技术服务。
十六、污水处理池平面布置图
以上招标资讯由秀霸牌二氧化氯官网(www。sdclo2。com)为您转载,如有侵权,请联系电话400-8697-001删除。
二氧化氯、过硫酸氢钾厂家供货热线:④00⑧⑥⑨⑦00①
,本厂承诺不参加该投标项目,欢迎各地消毒产品经销商来电洽谈合作事宜。